Pompei. All’auditorium Stefano De Caro e Paola Miniero presentano il libro “La Casa di C. Giulio Polibio a Pompei (IX, 13, 1-3) e i bronzi del triclinio (EE)”, della collana “Quaderni di Studi Pompeiani”, curato dagli archeologi Fausto Zevi ed Elsa Nuzzo. Incontro promosso dall’associazione internazionale “Amici di Pompei”
Un volume destinato a rimanere un punto fermo nella conoscenza della Casa pompeiana di C. Giulio Polibio e dei suoi arredi, quello che viene presentato nel nuovo incontro promosso dall’associazione internazionale Amici di Pompei ETS: appuntamento venerdì 15 novembre 2024, alle 17, all’auditorium scavi del parco archeologico di Pompei, per la presentazione del libro “La Casa di C. Giulio Polibio a Pompei (IX, 13, 1-3) e i bronzi del triclinio (EE)”, decimo volume della collana “Quaderni di Studi Pompeiani” edito dall’associazione Amici di Pompei, curato dagli archeologi Fausto Zevi ed Elsa Nuzzo, che, oltre ai puntuali articoli dei curatori si avvale anche di quelli di altri studiosi e tecnici del mondo antico, quali Klara De Decker, Domenico Esposito, Simona Minichino, Elisa Pucci e coautori, Grete Stefani e Antonio Varone, che completano e arricchiscono le varie parti dello studio. Il libro, alla presenza degli autori, verrà presentato dagli archeologi Stefano De Caro, già direttore generale Archeologia del ministero dei Beni culturali nonché direttore generale ICCROM, organismo intergovernativo con circa 150 stati membri per la conservazione e il restauro dei Beni Culturali in ogni parte del mondo; e Paola Miniero, già direttrice degli scavi di Stabia e del museo nazionale del Castello di Baia.

Copertina del libro “La Casa di C. Giulio Polibio a Pompei (IX, 13, 1-3) e i bronzi del triclinio (EE)” a cura di Fausto Zevi ed Elsa Nuzzo
L’opera, che ha avuto una lunga e profonda gestazione, era stata inizialmente concepita con l’intento di realizzare la pubblicazione definitiva degli splendidi bronzi tricliniari rinvenuti nel 1978 nella casa di Giulio Polibio a Pompei, ma si è poi subito allargata, in assenza di una pubblicazione definitiva sulla casa, allo studio del contesto storico e della realtà culturale in cui si collocano i preziosi reperti. Sono state così investigate sia la figura degli abitatori della casa, sia la storia edilizia dell’edificio, mirabile esempio di abitazione sannitica conservatasi pressoché immutata fino al 79 dopo l’accorpamento di due “case a schiera” avvenuto nel tardo II sec. a.C. Nello stesso tempo sono stati analizzati gli arredi pittorici del complesso, né si è trascurato uno sguardo generale sui corredi tricliniari di Pompei, mentre un capitolo speciale è stato riservato al lungo e puntuale restauro eseguito sui bronzi presso l’Istituto Centrale del Restauro a Roma e l’Opificio delle Pietre Dure a Firenze. La parte centrale del lavoro è riservata all’analisi dei singoli reperti, mirabilmente illustrati anche dalle foto di Luciano e Marco Pedicini, dei quali vengono anche elencate le occasioni in cui essi sono stati presentati al pubblico in varie mostre ed esposizioni.

L’archeologo Fausto Zevi

L’archeologa Elsa Nuzzo
A curare il libro due archeologi legati alla storia del sito vesuviano. Fausto Zevi, già soprintendente di Napoli e Pompei nonché ordinario di Archeologia all’università di Roma “La Sapienza”, è membro dell’Accademia dei Lincei; Elsa Nuzzo, archeologa formatasi alla Scuola Archeologica Italiana di Atene, è da anni operante su temi dell’archeologia campana.
Pompei. Dai nuovi scavi nell’Insula 10 della Regio IX emerge un salone da banchetto dalle eleganti pareti nere decorato con soggetti ispirati alla guerra di Troia: Elena e Paride, e Apollo e Cassandra. Zuchtriegel: “Le coppie mitiche erano spunti per parlare del passato e della vita, dell’amore, ma anche del rapporto tra individuo e destino”. Sangiuliano: “Crediamo in Pompei, un unicum mondiale, e abbiamo finanziato nuovi scavi”

La scena con Elena e Paride al centro della parete nord del salone nero, da banchetto, scoperto nell’insula 10 della Regio IX a Pompei (foto parco archeologico pompei)
Un imponente salone da banchetto (oecus tricliniare), dalle eleganti pareti nere, decorate con soggetti mitologici ispirati alla guerra di Troia, è uno degli ambienti recentemente portati alla luce durante le attività di scavo in corso nell’insula 10 della Regio IX di Pompei e oggi completamente visibile in tutta la sua maestosità. Un ambiente raffinato nel quale intrattenersi in momenti conviviali, tra banchetti e conversazioni, in cui si respirava l’alto tenore di vita testimoniato dall’ampiezza dello spazio, dalla presenza di affreschi e mosaici databili al III stile, dalla qualità artistica delle pitture e dalla scelta dei soggetti. “Lo scavo archeologico avviato nel 2023 nell’insula 10 della Regio IX a Pompei, necessario per la sistemazione dei fronti e per il miglioramento dell’assetto idrogeologico del pianoro, ha finora restituito due abitazioni, collegate tra di loro, che si affacciavano su via di Nola, le cui facciate furono già portate alla luce alla fine del ‘800. Si cominciano ora a intravedere le strutture poste alle spalle delle due case, che sembrano essere il risultato di divisioni delle unità proprietarie originarie, come quella che si legge nel tablino della casa con il panificio di Aulo Rustio Vero (IX, 10, 1)”: comincia così Gabriel Zuchtriegel l’articolo scientifico “Quando la Guerra di Troia non era ancora decisa. Il salone nero con affreschi di III stile nella Regio IX, insula 10 di Pompei”, pubblicato sul numero 4 dell’E-Journal degli scavi di Pompei (dell’11 aprile 2024). Il tema dominante di questo “salone nero” sembra essere quello dell’eroismo, per le raffigurazioni di coppie di eroi e divinità della guerra di Troia, ma anche del fato e al tempo stesso della possibilità, sovente non afferrata, che l’uomo ha di poter cambiare il proprio destino.
“Pompei è davvero uno scrigno di tesori che non finisce mai di sorprenderci e di destare stupore”, commenta il ministro della Cultura, Gennaro Sangiuliano, “perché ogni volta che scaviamo troviamo qualcosa di bello e di significativo. Noi crediamo in questo unicum mondiale che rappresenta Pompei e per questo in legge di bilancio abbiamo finanziato nuovi scavi. Bisogna andare avanti nella tutela di questo importante sito ma anche nella sua valorizzazione”.

Il salone da banchetto (oecus tricliniare), dalle eleganti pareti nere, scoperto nell’insula 10 della Regio IX a Pompei (foto parco archeologico pompei)
È il direttore del parco archeologico di Pompei, Gabriel Zuchtriegel, a entrare nel merito della scoperta: “Le pareti erano nere per evitare che si vedesse il fumo delle lucerne sui muri. Qui ci si riuniva per banchettare dopo il tramonto, la luce tremolante delle lucerne faceva sì che le immagini sembrassero muoversi, specie dopo qualche bicchiere di buon vino campano. Le coppie mitiche erano spunti per parlare del passato e della vita, solo apparentemente di carattere meramente amoroso. In realtà, parlano del rapporto tra individuo e destino: Cassandra che può vedere il futuro ma nessuno le crede, Apollo che si schiera con i troiani contro gli invasori greci, ma pur essendo un Dio non riesce ad assicurare la vittoria, Elena e Paride che con il loro amore politicamente scorretto sono la causa della guerra, o forse solo un pretesto, chi sa. Oggi, Elena e Paride siamo tutti noi: ogni giorno possiamo scegliere se curarci solo della nostra vita intima o di indagare come questa nostra vita si intrecci con la grande storia, pensando per esempio, oltre a guerre e politica, all’ambiente, ma anche al clima umano che stiamo creando nella nostra società, comunicando con gli altri dal vivo e sui social”.

Regio IX, Insula 10, salone nero: due coppie di gladiatori disegnate a carboncino sull’intonaco grezzo delle arcate del grande scalone (foto parco archeologico pompei)

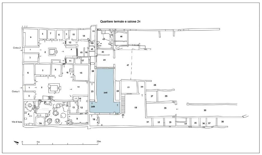
Planimetria dell’insula 10 della Regio IX con evidenziato l’ambiente 24, il salone da banchetto (salone nero) a T (foto parco archeologico pompei)
Il salone misura circa 15 metri di lunghezza per 6 di larghezza e si apre in un cortile che sembra essere un disimpegno di servizio, a cielo aperto, con una lunga scala che porta al primo piano, priva di decorazione. Sotto gli archi della scala è stato riscontrato un enorme cumulo di materiale di cantiere accantonato. Qualcuno aveva disegnato a carboncino sull’intonaco grezzo delle arcate del grande scalone, due coppie di gladiatori e quello che sembra un enorme fallo stilizzato. L’attività di scavo nell’insula 10 della Regio IX è parte di un più ampio progetto di messa in sicurezza del fronte perimetrale tra l’area scavata e non, di miglioramento dell’assetto idrogeologico, finalizzato a rendere la tutela del vasto patrimonio pompeiano (più di 13mila ambienti in 1070 unità abitative, oltre agli spazi pubblici e sacri) più efficace e sostenibile.

Regio IX, Insula 10, salone nero: organizzazione della decorazione pittorica (foto parco archeologico pompei)
“La decorazione pittorica del salone da banchetto può essere assegnata, nel suo insieme, al terzo stile maturo”, spiega Domenico Esposito. “La forma a T del salone ne ha condizionato anche l’applicazione del sistema decorativo, che rispetta comunque la suddivisione canonica in anticamera e sala. Su tutte le pareti lo schema prevede un alto plinto rosso, concluso superiormente da un listello bianco. Lo zoccolo, a fondo nero, come tutto il resto della parete, presenta una serie di figure di Satiri e Menadi con strumenti musicali, quali tamburelli, cembali e flauti di Pan. La fascia che separa lo zoccolo dalla zona mediana è molto ricca: su una fascia azzurra si imposta una cornice gialla, con le zone d’ombra delineate in marrone; su di essa corre un listello verde, reso con due diverse tonalità dello stesso colore; segue una modanatura campita in bianco crema, lilla e viola, sulla quale si imposta una seconda cornice bianca, con listello centrale verde chiaro. La zona mediana è immaginata come una parete chiusa, seminascosta da pilastri, che ne inquadrano il pannello centrale e candelabri metallici, che separano le coppie di pannelli laterali. I pannelli della zona mediana sono a fondo monocromo nero e sono racchiusi da doppi listelli, resi in bianco-rosso e azzurro-bianco. La decorazione del salone prevedeva, infine, un soffitto a cassettoni a fondo nero, con una serie di riquadri geometrici, racchiusi da listelli bianchi e gialli e decorati da motivi floreali stilizzati, o da vignette con animali”.

La scena con Elena e Paride al centro della parete nord del salone nero, da banchetto, scoperto nell’insula 10 della Regio IX a Pompei (foto parco archeologico pompei)

Pompei, Regio IX, Insula 10, salone nero: didascalia in greco vergata in bianco al centro della scena: ΑΛΕΞΑΝΔΡΟΣ ΕΛΕΝΗ (foto parco archeologico pompei)
“Al centro di ciascuna parete – continua – è presente una scena figurata, concepita come una grande vignetta, piuttosto che come un vero e proprio quadro. Le vignette rappresentano delle coppie di figure del mito. Sulla parete nord è raffigurato l’incontro tra Elena e Paride, chiaramente indicati da una didascalia in greco vergata in bianco al centro della scena: ΑΛΕΞΑΝΔΡΟΣ ΕΛΕΝΗ.

Pompei, Regio IX. Insula 10, salone nero: dettaglio della parete nord con Elena e l’ancella (foto parco archeologico pompei)
Elena incede da sinistra verso destra, la gamba sinistra puntata a terra, quella destra scartata indietro; il braccio destro abbassato e lievemente teso in avanti, quello sinistro piegato sotto il petto e sorretto dalla mano di un’ancella; il capo lievemente chinato in avanti, ma lo sguardo diretto a incrociare quello di Paride, che le sta di fronte. Veste un chitone celeste ornato da bottoni d’oro sul braccio destro. La trasparenza della stoffa, ne lascia intravvedere il candore della pelle e le forme delicate e sensuali. Il chitone è in parte coperto da un himation di colore grigio-verde, che avvolge i fianchi e le gambe e lascia scoperto il busto. Ai piedi dei calzati di colore rosso. Elena reca un anello all’anulare sinistro, un’armilla all’avambraccio destro, un elaborato collier al collo ed orecchini con pendenti; i capelli, di colore rosso, sono ornati da un copricapo, o da una retina azzurra. Elena è scortata da una giovane ancella, vista frontalmente, col capo lievemente rivolto verso sinistra ad osservare Elena. La fanciulla veste un chitone verde-azzurro, avvolto in un mantello di colore viola-marrone; ha i capelli fulvi e ricci, il collo ornato da una collana, nella sinistra regge un flabello.

Pompei, Regio IX. Insula 10, salone nero: dettaglio della parete nord con Paride (foto parco archeologico pompei)
Paride è rappresentato stante sulla gamba destra, la sinistra lievemente scartata al lato, il braccio destro proteso in avanti, come a prendere per mano la giovane Elena. Al gesto istintivo del giovane principe troiano fa riscontro il rossore del viso e lo sguardo intenso che ricambia quello di Elena. Il braccio sinistro di Paride regge un pedum, il bastone da pastore; accucciato a suoi piedi un grosso cane, probabilmente un molosso. Entrambi gli attributi ricordano l’infanzia di Paride, cresciuto come pastore; proprio come pastore egli avrebbe espresso il proprio giudizio sulla più bella tra le tre dee: Era, Atena ed Afrodite. Il giovane principe veste sontuosi abiti orientali; la tunica di colore azzurro con maniche lunghe a fasce gialle, fissata in vita da una cintura, è ornata da una fila di riquadri gialli e rossi su fondo bianco crema inquadrati da due sottili fasce rosse. I pantaloni anassaridi, dal tono verde-giallognolo, sono ornati da linee orizzontali rosse e azzurre. Un ampio mantello verde, poggiato sulla spalla sinistra, copre in parte le gambe. Il capo del giovane è coperto da un berretto frigio con bande laterali che ricadono sulle spalle. La scena dunque narra dell’incontro, fatale, tra il giovane Paride e la bella Elena, moglie del re di Sparta Menelao, che egli rapirà e porterà con sé a Troia, causando la famigerata ventennale guerra tra gli Achei e i Troiani”.

La scena con Apollo e Cassandra al centro della parete sud del salone nero, da banchetto, scoperto nell’insula 10 della Regio IX a Pompei (foto parco archeologico pompei)
“Al centro della parete sud – riprende la descrizione Domenico Esposito – è rappresentata una seconda coppia, priva di didascalia in greco, ma identificabile, con tutta probabilità, con Apollo e Cassandra.

Pompei, Regio IX. Insula 10, salone nero: dettaglio della parete sud con Apollo (foto parco archeologico pompei)
Il dio è rappresentato nudo, con un ampio mantello azzurro bordato d’oro poggiato sulla spalla sinistra e una cintura verde, che ricade dalla spalla destra sul torso. Il dio resta sulla gamba destra tesa, la sinistra incrociata davanti alla destra; il braccio e la mano destra sono portati dietro la schiena, la mano sinistra è poggiata su una cetra. Il capo, dai lunghi capelli, è cinto da un serto di alloro. Il dio guarda con intensità la giovane donna che gli siede di fronte su di un omphalos verde, racchiuso da una rete d’oro, poggiante su di un podio di due gradini.

Pompei, Regio IX. Insula 10, salone nero: dettaglio della parete sud con Cassandra (foto parco archeologico pompei)
La figura femminile indossa un chitone marrone, che ne lascia scoperta la spalla sinistra. Un ampio mantello beige, fissato dietro la schiena e, con prospettiva probabilmente errata, sotto il braccio destro, ricopre le gambe con morbide pieghe. La fanciulla poggia il piede destro su un sasso, quello sinistro direttamente a terra; reca delle armille ai polsi; il capo, dai lunghi capelli sciolti che ricadono sulle tempie, sul collo e sulle spalle, è ornato di alloro. Il braccio sinistro è poggiato sulla gamba sinistra, e regge con la mano un ramo di alloro. Il braccio destro sembrerebbe poggiato su un sostegno, non più visibile, mentre la mano è portata alla fronte, in un gesto che sembra esprimere una grande disperazione, sottolineata anche dallo sguardo triste e dalle labbra serrate. La posa, i gesti, l’espressione del viso della fanciulla, l’essere ella seduta su di un omphalos, simbolo dei vaticini apollinei, permettono di identificarla con Cassandra, la giovane figlia di Priamo, sventurata vate, condannata dal dio Apollo a non esser creduta per averne respinto l’amore. Le due vignette delle pareti lunghe del triclinio narrano dunque vicende amorose cariche di presagi nefasti, che hanno portato alla guerra e alla caduta di Troia”.
Pompei. All’auditorium l’archeologo Domenico Esposito presenta il libro “Carta del potenziale archeologico del territorio comunale di Pompei” (Centro di Cultura e Storia Amalfitana) degli archeologi Mario Notomista e Domenico Camardo, incontro promosso dall’associazione internazionale “Amici di Pompei”
“Carta del potenziale archeologico del territorio comunale di Pompei” è il titolo del libro degli archeologi Mario Notomista e Domenico Camardo con un contributo geoarcheologico di Aldo Cinque che viene presentato dall’archeologo Domenico Esposito, ricercatore alla Freie Universität Berlin, nell’incontro promosso dall’associazione internazionale “Amici di Pompei” ETS, giovedì 14 marzo 2024, alle 17, nell’auditorium del parco archeologico di Pompei, con la partecipazione di Gabriel Zuchtriegel, direttore generale del parco archeologico di Pompei; Teresa Elena Cinquantaquattro, dirigente del Segretariato regionale del ministero della Cultura per la Campania; Mariano Nuzzo, soprintendente della soprintendenza Archeologia Belle arti e Paesaggio per l’area metropolitana di Napoli; Carmine Lo Sapio, sindaco di Pompei; Antonio Varone, presidente dell’associazione internazionale Amici di Pompei; Giuseppe Gargano, Centro di Cultura e Storia Amalfitana. Il testo, corredato dalle foto di Francesco Varone, è edito dal Centro di Cultura e Storia Amalfitana in collaborazione con il parco archeologico di Pompei, il Segretariato regionale del ministero della Cultura per la Campania, la soprintendenza Archeologia Belle arti e Paesaggio per l’area metropolitana di Napoli, il Comune di Pompei.

Copertina del libro “Carta del potenziale archeologico del territorio comunale di Pompei” (Centro di Cultura e Storia Amalfitana) degli archeologi Mario Notomista e Domenico Camardo
Questo libro nasce dalla redazione della Carta del Potenziale Archeologico del territorio comunale di Pompei, che gli archeologi Domenico Camardo e Mario Notomista, della Sosandra srl, hanno realizzato nel 2020 per conto dell’Amministrazione civica nel corso dell’elaborazione del Piano Urbanistico Comunale. È nota a tutti l’importanza che l’antica Pompei riveste nel mondo, sia come fonte di conoscenza delle civiltà del passato ed in modo particolare di quella romana del I secolo d.C., sia come attrattore turistico. Meno conosciuti sono, invece, i numerosi rinvenimenti sparsi nel territorio, che testimoniano una frequentazione umana di questi luoghi a partire dall’Età Preistorica. La ragione di questa mancanza è dovuta essenzialmente al fatto che molti di questi siti pur essendo stati individuati ed esplorati, in alcuni casi anche integralmente, sono stati successivamente ricoperti e quindi oggi non sono più visibili. A ciò si aggiunga che mentre l’antica città è stata oggetto di indagini sistematiche avviate nel 1748 sotto l’egida della corona Borbonica, il territorio invece è stato esplorato solo attraverso interventi sporadici. Lo scopo di questo volume, che mappa i rinvenimenti archeologici e le aree sottoposte a vincolo presenti entro i confini comunali, è quello di costituire un valido strumento di lavoro che serva da base a tutti quei professionisti che si adopereranno per lo sviluppo urbano della città tenendo presente anche le valenze storico-archeologiche. L’auspicio che grazie all’utilizzo di questo volume, finanziato dal Centro di Cultura e Storia Amalfitana, tutti i soggetti coinvolti riusciranno a conciliare la salvaguardia del patrimonio archeologico con le necessità di sviluppo territoriale, trasformando quello che per molti è un “rischio archeologico” in un vero e proprio “potenziale” a servizio della crescita culturale della comunità pompeiana.
Commenti recenti